
Neubau-Erstbezug: Attraktive Wohnung mit sonnigem Balkon und Erdgeschossterrasse!
1.475,00 €
Kaltmiete
3
Zimmer
ca. 95 m²
Wohnfläche
Grundstück
Gesamtfläche
Beschreibung
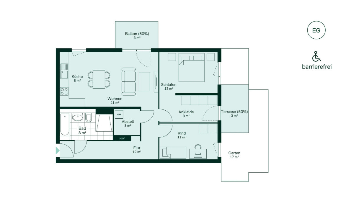
Willkommen Zuhause im Neubau-Erstbezug: Hier erwartet Sie eine gut geschnittene 3 Zimmer-Wohnung im Hochparterre eines ansprechenden, dreigeschossigen Mehrfamilienhauses.
Sie erreichen Ihre Etage (Hochparterre) über ein paar Stufen oder bequem mit dem Aufzug.
Die Wohnung verfügt über einen hellen Wohnraum mit offenem Küchenbereich und Zugang zum überdachten Balkon. Vom größeren Schlafraum aus gelangt man zur seitlich gelegenen Erdgeschossterrasse mit kleinem, eigenen Garten. Der 2. Schlafraum eignet sich sehr gut als Homeoffice oder freundliches Kinderzimmer.
Die Wohnräume sind mit gemütlichem Parkettboden ausgestattet. Alle Räume verfügen über eine Fußbodenheizung mit Einzelraumsteuerung. Die großen, bodentiefen Fenster sorgen für viel Helligkeit. Alle Fenster können durch elektrische Rollläden abgedunkelt werden.
Ein großes, modernes Bad mit Wanne und ebenerdiger Dusche und ein geräumiger Abstellraum mit Waschmaschinenanschluss vervollständigen das Angebot.
Im Untergeschoss befinden sich der Kellerraum zur Wohnung und ein gemeinsamer Fahrradkeller.
Ein Stellplatz gehört nicht zur Wohnung.
Haben wir Ihr Interesse geweckt? Dann freuen wir uns auf Ihre Kontaktaufnahme!
Fakten
Grunddaten
Hochparterre
Düsseldorf
Baujahr:
2024
Erdgeschoss
EG
3
Etagen
Fläche
ca. 95 m²
Wohnfläche
Nutzfläche
Grundstück
Gesamtfläche
Zimmer
3
Zimmer
2
Schlafzimmer
Badezimmer
1
separates WC
1
separate WCs
Terrasse
1
Terrassen
Balkon
1
Balkone
Sonstiges
Heizungsart:
Fernwärme
Fußbodenheizung, Fernwärme
Personenaufzug
Carport
Garage
Tiefgaragen Stellplatz
Stellplätze:
offene Küche
Wintergarten
Sauna
Kamin
Voll unterkellert
Vermietet
Verfügbar ab:
sofort
Stellplatzmiete
Garten
Finanzierung
Kaufpreis
1.475,00 €
Kaltmiete
325,00 €
Nebenkosten
4.425,00 €
Kaution
Provision:
Virtuelle Besichtigung
Energieausweis
Bedarfsausweis
Energieverbrauchswert:
Energieausweis gültig bis:
23.02.2035
Baujahr laut Energieausweis:
2024
wesentlicher Energieträger:
Fernwärme
Energieeffizienzklasse:
A
Grundriss
Lagebeschreibung
Hier erwartet Sie ein modernes. energieeffizientes Zuhause mit sehr guter Verkehrsanbindung im beliebten Stadtteil Düsseldorf-Benrath.
Zum bekannten Barockschloss mit angrenzendem Park sowie zur S- und U-Bahn sind es nur 500 m. Das Rheinufer liegt gleich hinter dem Schlosspark. Ein moderne Aldi-Supermarkt ist in der Nähe. Die einladende Fußgängerzone von Benrath mit Geschäften des täglichen Bedarfs, Cafés und Restaurants ist ebenfalls fußläufig erreichbar.
Sonstiges
Ihr/e Ansprechparner/in
Immobilienmarkt
Von Ihrem Immobilienmakler vor Ort
425.000,00 €
Wohnfläche
ca. 84 m²
3
Zimmer
Grundstück
0
October 24, 2025

















