
Neubau - Exklusive Penthouse-Wohnung mit Blick über die Dächer von Aachen!
2.422,00 €
Kaltmiete
3
Zimmer
ca. 173 m²
Wohnfläche
Grundstück
Gesamtfläche
Beschreibung
Im Herzen der Stadt Aachen entsteht ein eleganter Neubau eines Wohn- und Geschäftshauses mit 10 Wohnungen, 2 Penthouse-Wohnungen, Büros und einer Ladenfläche im Erdgeschoss. Die Fertigstellung ist für März 2024 geplant. Aktuell sind nur noch wenige Wohnungen, das Ladenlokal und eine von drei Büroeinheiten im Objekt verfügbar.
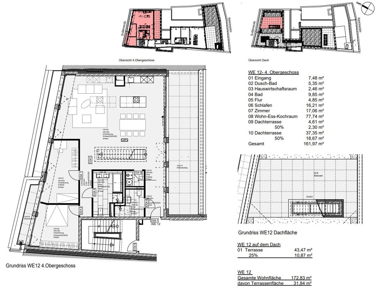
Diese großzügige Penthouse-Wohnung mit Loftcharakter liegt im 4. Obergeschoss. Ein absolutes Highlight ist der Ausblick von den Terrassen, der seinesgleichen sucht. Bequem gelangen Sie mit dem Aufzug bis zu Ihrer Etage.
Die Wohnung verfügt über einen großen, hellen Wohnraum mit bodentiefen Fensterfronten zu beiden Seiten mit offener Küche und Zugang zur einladenden Dachterrasse. Über eine ansprechend gestaltete Treppe im Wohnraum mit darüber liegendem Dachfenster gelangen Sie zu einer zweiten Dachterrasse (ca. 43 m²), die zur Wohnung gehört.
Die Wohnung bietet darüber hinaus 2 Schlafräume und 2 moderne Bäder, wobei eins mit einer ebenerdigen Dusche und das andere mit einer Dusche und einer Wanne ausgestattet ist. Den Waschmaschinenanschluss finden Sie in einem Hauswirtschaftsraum in der Wohnung.
In den Wohnräumen wird ein gemütlicher Parkettboden mit Fußbodenheizung verlegt. Die großen, bodentiefen Fenster sorgen für viel Lichteinfall.
Die Visualisierung kann lediglich als Orientierung bezüglich der geplanten Ausstattung der Wohnungen dienen. Über eigene Stellplätze verfügt das Objekt nicht. In fußläufiger Nähe gibt es Möglichkeiten der Anmietung von Dauerstellplätzen in öffentlichen Parkhäusern.
Haben wir Ihr Interesse geweckt? Wir freuen uns von Ihnen zu hören!
Fakten
Grunddaten
Penthouse
Aachen - Mitte
Baujahr:
2023
Erdgeschoss
4. Obergesc
4
Etagen
Fläche
ca. 173 m²
Wohnfläche
Nutzfläche
Grundstück
Gesamtfläche
Zimmer
3
Zimmer
2
Schlafzimmer
1
Badezimmer
2
separates WC
2
separate WCs
Terrasse
2
Terrassen
Balkon
2
Balkone
Sonstiges
Heizungsart:
Fußbodenheizung, Fernwärme
Personenaufzug
Carport
Garage
Tiefgaragen Stellplatz
Stellplätze:
0
Wintergarten
Sauna
Kamin
Kellerabteil
Vermietet
Verfügbar ab:
01.03.2024
Stellplatzmiete
Garten
Finanzierung
Kaufpreis
2.422,00 €
Kaltmiete
692,00 €
Nebenkosten
7.260,00 €
Kaution
Provision:
Virtuelle Besichtigung
Energieausweis
Bedarfsausweis
Energieverbrauchswert:
Energieausweis gültig bis:
28.09.2033
Baujahr laut Energieausweis:
2023
wesentlicher Energieträger:
Fernwärme
Energieeffizienzklasse:
A
Grundriss
Lagebeschreibung
Dieses ansprechende Neubauquartier liegt mitten in der Aachener Innenstadt unweit vom Aachener Dom in der Großkölnstraße 30-34/Kleinkölnstraße 9. "Vor der Tür" finden sich viele Möglichkeiten für einen Stadtbummel mit Restaurantbesuch oder einen Cappuccino mit Freunden. Verschiedene Einkaufsmöglichkeiten für Lebensmittel finden sich ebenfalls in fußläufiger Umgebung. Die Anbindung an den ÖPNV ist gut.
Die Universitätsstadt Aachen ist mit ihren 260.000 Einwohnern ein Oberzentrum in NRW und bildet mit Maastricht das Zentrum der Euregio Maas-Rhein. Die Autobahnen A 4 und A 44, die Schnellzüge ICE und Thalys sowie die Flughäfen Aachen/Maastricht, Düsseldorf und Köln/Bonn bieten beste Verkehrsanbindungen.
Sonstiges
Ihr/e Ansprechparner/in
Immobilienmarkt
Von Ihrem Immobilienmakler vor Ort
220.000,00 €
Wohnfläche
ca. 49 m²
2
Zimmer
Grundstück
0
November 7, 2025
198.000,00 €
Wohnfläche
ca. 55 m²
3
Zimmer
Grundstück
0
November 7, 2025











