
Provisionsfrei: Energieeffizientes Raumwunder in verkehrsberuhigter Seitenstraße
Kaltmiete
370.000,00 €
6
Zimmer
ca. 120 m²
Wohnfläche
ca. 179 m²
Grundstück
ca. 179 m²
Gesamtfläche
Beschreibung
Im wunderschönen Velbert-Langenberg erwartet Sie ein lichtdurchflutetes Reihenmittelhaus mit vier Etagen in einer verkehrsberuhigten Sackgasse.
Das Objekt wurde im Jahr 2000 errichtet und zeichnet sich durch seine hohe Energieeffizienz aus. Insgesamt verfügt das Gebäude über ca. 166 m² Wohn- und Nutzfläche sowie eine Garage und einen Außenstellplatz.
Fordern Sie unser ausführliches Exposé für weitere Informationen an.
Fakten
Grunddaten
Einfamilienhaus
Velbert - Langenberg
Baujahr:
2000
Erdgeschoss
4
Etagen
Fläche
ca. 120 m²
Wohnfläche
ca. 46 m²
Nutzfläche
ca. 179 m²
Grundstück
ca. 179 m²
Gesamtfläche
Zimmer
6
Zimmer
3
Schlafzimmer
Badezimmer
2
separates WC
2
separate WCs
Terrasse
1
Terrassen
Balkon
1
Balkone
Sonstiges
Heizungsart:
Gas
Zentralheizung
Carport
Garage
Tiefgaragen Stellplatz
Stellplätze:
Wintergarten
Sauna
Kamin
Voll unterkellert
Vermietet
Verfügbar ab:
Stellplatzmiete
Garten
Finanzierung
370.000,00 €
Kaufpreis
Kaltmiete
Nebenkosten
Kaution
Provision:
Provisionsfrei für Käufer
Virtuelle Besichtigung
Energieausweis
Verbrauchsausweis
Energieverbrauchswert:
52,8 kWh/(m²a)
Energieausweis gültig bis:
04.09.2033
Baujahr laut Energieausweis:
2000
wesentlicher Energieträger:
Gas
Energieeffizienzklasse:
B
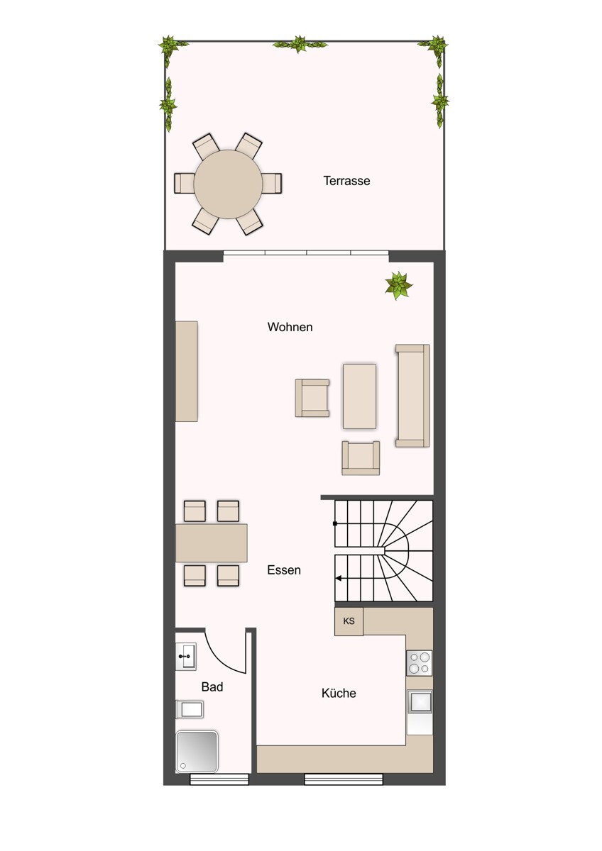
Grundriss
Lagebeschreibung
Langenberg ist ein Bezirk der Stadt Velbert im Kreis Mettmann mit 15.724 Einwohnern (Stand 31.11.2023). Besonders sehenswert ist die historische Altstadt und das historische Bürgerhaus im Stadtzentrum.
Supermärkte und eine Bäckerei sind bequem zu Fuß erreichbar. Kindergarten und Grundschule befinden sich in unmittelbarer Nähe. Das örtliche Gymnasium ist 2,3 km entfernt.
Die Autobahn 535 ist in 15 Minuten erreichbar. Der öffentliche Personennahverkehr ist gut ausgebaut. Die nächste Bushaltestelle ist 450 m entfernt. Der Bahnhof Langenberg Velbert ist in 1,6 Kilometern Entfernung zu finden.
Den Düsseldorfer Flughafen erreichen Sie in ca. 30 Minuten.
Sonstiges
Ihr/e Ansprechparner/in
Immobilienmarkt
Von Ihrem Immobilienmakler vor Ort
220.000,00 €
Wohnfläche
ca. 49 m²
2
Zimmer
Grundstück
0
November 7, 2025
198.000,00 €
Wohnfläche
ca. 55 m²
3
Zimmer
Grundstück
0
November 7, 2025





















