
Neubau-Erstbezug: Attraktives Ladenlokal im Herzen von Aachen!
Kaltmiete
Zimmer
Wohnfläche
Grundstück
Gesamtfläche
Beschreibung
Im Herzen der Stadt Aachen liegt dieser elegante Neubau eines Wohn- und Geschäftshauses mit Handels-, Gewerbe und Wohnflächen.
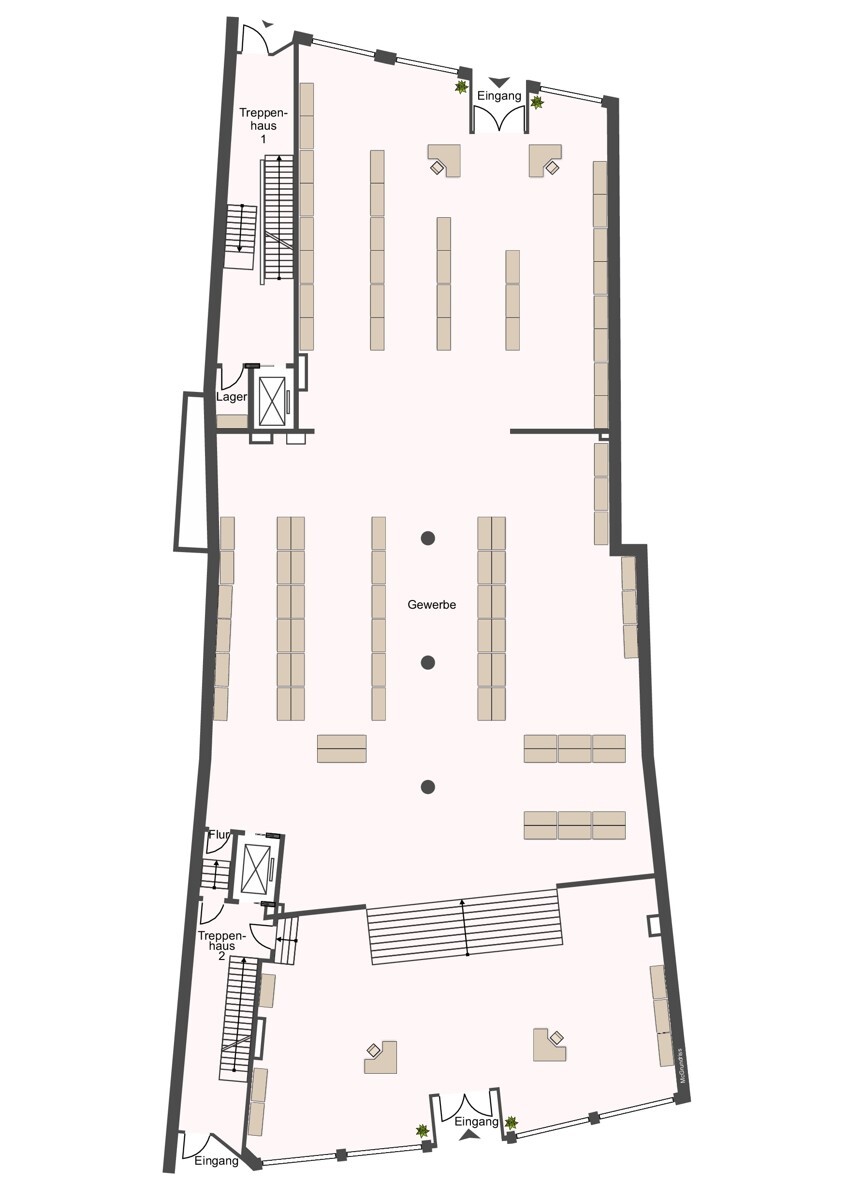
Das Ladenlokal bietet mit seiner Fläche von rund 700 m², welche sich ausschließlich im Erdgeschoss befindet, und ihrer Zugänglichkeit von der Großköln- und Kleinkölnstraße aus, viel Flexibilität. Sowohl die Anmietung durch einen Mieter als auch die Querteilung der Fläche sind umsetzbar. Der Ausbau der Fläche wird in Abstimmung mit dem Mieter vorgenommen.
Neben den Verkaufsflächen wurden auch Büro- und Praxisflächen in den oberen Geschossen realisiert und bereits vermietet.
Vom 2. bis zum 4. OG sind insgesamt 12 Wohnungen mit einer Fläche ab 26 m² bis hin zu zwei außergewöhnlichen Penthouse-Wohnungen entstanden, welche ebenfalls vermietet sind.
Die Aachener City gilt als lebendiger Mittelpunkt des Geschäftslebens und wird auch bei Kunden aus dem Umland geschätzt.
Fakten
Grunddaten
Verkaufsfläche
Aachen - Mitte
Baujahr:
2023
Erdgeschoss
Erdgeschoss
Etagen
Fläche
Wohnfläche
Nutzfläche
Grundstück
Gesamtfläche
Zimmer
Zimmer
Schlafzimmer
Badezimmer
separates WC
separate WCs
Terrasse
Terrassen
Balkon
Balkone
Sonstiges
Heizungsart:
Personenaufzug
Carport
Garage
Tiefgaragen Stellplatz
Stellplätze:
Wintergarten
Sauna
Kamin
Voll unterkellert
Vermietet
Verfügbar ab:
Sofort
Stellplatzmiete
Garten
Finanzierung
Kaufpreis
Kaltmiete
Nebenkosten
Kaution
Provision:
Virtuelle Besichtigung
Energieausweis
Bedarfsausweis
Energieverbrauchswert:
Energieausweis gültig bis:
02.04.2034
Baujahr laut Energieausweis:
2023
wesentlicher Energieträger:
Nahwärme
Energieeffizienzklasse:
B
Grundriss
Lagebeschreibung
Das Objekt eignet sich aufgrund seiner zentralen innerstädtischen Lage zwischen Altstadt, Fußgängerzone und Hauptbahnhof ideal als Standort für moderne Unternehmen mit hohen Ansprüchen. "Vor der Tür" finden sich viele Möglichkeiten für einen schnellen Mittagsimbiss, einen Espresso mit Geschäftspartnern oder das Feierabendbier mit den Kollegen. Verschiedene Einkaufsmöglichkeiten finden sich ebenfalls in fußläufiger Umgebung.
Die Universitätsstadt Aachen ist mit ihren 260.000 Einwohnern Oberzentrum in NRW und bildet mit Maastricht das Zentrum der Euregio Maas-Rhein. Die Autobahnen A 4 und A 44, die Schnellzüge ICE und Thalys sowie die Flughäfen Aachen/Maastricht, Düsseldorf und Köln/Bonn bieten beste Verkehrsanbindungen.
Sonstiges
Ihr/e Ansprechpartner/in
Immobilienmarkt
Von Ihrem Immobilienmakler vor Ort
850.000,00 €
Wohnfläche
Zimmer
ca. 600 m²
Grundstück
0
April 22, 2026
619.000,00 €
Wohnfläche
ca. 256 m²
Zimmer
ca. 410 m²
Grundstück
0
April 17, 2026


















